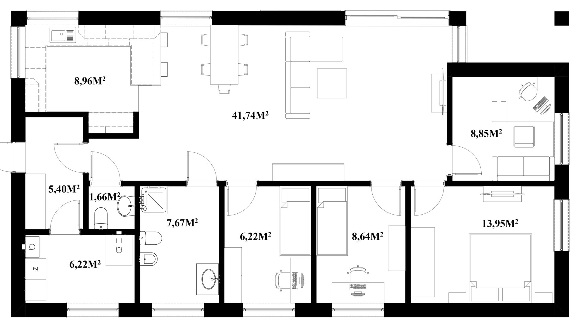
Powierzchnia “po podłodze”:109,53 m2
Metraż powierzchnia użytkowa 106,53 m2
Ilość pokoi łącznie z salonem: 5
Wysokość pomieszczeń: 2,79 m
Wysokość budynku: 6,15 m
Minimalne wymiary działki: 14,5 m x 11,9 m

  • Projekt domu
  • Konstrukcja stalowa IPE 160
  • Strop z płyty OSB
  • Wykonanie dachu oraz ścian zewnętrznych z elewacją domu
  • Stolarka zewnętrzna – okna 3 szybowe (jednostronny kolor), oraz drzwi zewnętrzne

  • Standard podstawowy
  • Izolacja ścian oraz dachu Pianą PUR
  • Wylanie posadzki
  • Instalacja wodno-kanalizacyjna + C.O
  • Instalacja elektryczna
  • Zabudowa ścian wewnętrznych oraz działowych z ogniochronnych płyt GK
  • Ogniochronne płyty Siniat

Munchen Parterowy

Dom „München” w wersji parterowej to elegancka i klasyczna bryła z nowoczesnym akcentem. Jasna elewacja, przełamana ciemnymi wstawkami, nadaje budynkowi wyrazistego charakteru, a subtelne detale podkreślają jego ponadczasowy styl. Charakterystyczne wcięcie w bryle dodaje dynamiki i nadaje jej niepowtarzalnego wyglądu.

Przestronne wnętrze składa się z dużego salonu połączonego z jadalnią i kuchnią, co zapewnia wygodną, otwartą przestrzeń do codziennego życia. Dzięki dużym przeszkleniom wnętrza są jasne i pełne naturalnego światła. „München” to idealne połączenie klasycznej elegancji i nowoczesnej funkcjonalności.

    Do góry