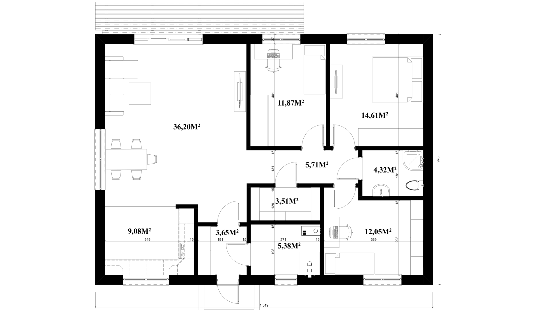
| Powierzchnia “po podłodze”: | 115,66 m2 |
| Metraż powierzchnia użytkowa | 99,7 m2 |
| Ilość pokoi łącznie z salonem: | 6 |
| Wysokość pomieszczeń: | 2,79 m |
| Wysokość budynku: | 8,21 m |
| Minimalne wymiary działki: | 15,9 m x 21,1 m |
- Projekt domu
- Konstrukcja stalowa IPE 160
- Strop z płyty OSB
- Wykonanie dachu oraz ścian zewnętrznych z elewacją domu
- Stolarka zewnętrzna – okna 3 szybowe (jednostronny kolor), oraz drzwi zewnętrzne
- Standard podstawowy
- Izolacja ścian oraz dachu Pianą PUR
- Wylanie posadzki
- Instalacja wodno-kanalizacyjna + C.O
- Instalacja elektryczna
- Zabudowa ścian wewnętrznych oraz działowych z ogniochronnych płyt GK
- Ogniochronne płyty Siniat
BONN Parterowy
Dom „Bonn” w wersji parterowej to klasyczna bryła, która łączy elegancję z funkcjonalnością. Jego jasna elewacja z ciemniejszymi wstawkami wokół okien nadaje budynkowi subtelny, ale wyrazisty charakter. Przestronny układ wnętrz zapewnia komfort i swobodę, a duże okna wpuszczają do środka mnóstwo naturalnego światła.
Wnętrze zostało zaprojektowane z myślą o wygodzie, a otwarte przestrzenie w strefie dziennej i funkcjonalne rozplanowanie sprawiają, że jest to idealne miejsce dla rodziny. Klasyczna forma, prosta, ale elegancka, doskonale wpisuje się w nowoczesne trendy, zachowując ponadczasowy urok.






