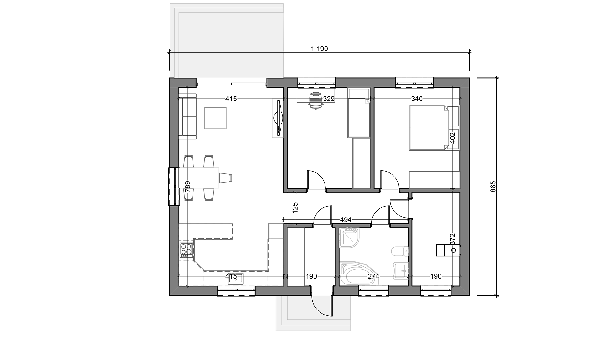
| Powierzchnia “po podłodze”: | 85 m2 |
| Metraż powierzchnia użytkowa | 85 m2 |
| Ilość pokoi łącznie z salonem: | 4 |
| Wysokość pomieszczeń: | 2,79 m |
| Wysokość budynku: | 5,90 m |
| Minimalne wymiary działki: | 19,9 m x 16,65 m |
- Projekt domu
- Konstrukcja stalowa IPE 160
- Strop z płyty OSB
- Wykonanie dachu oraz ścian zewnętrznych z elewacją domu
- Stolarka zewnętrzna – okna 3 szybowe (jednostronny kolor), oraz drzwi zewnętrzne
- Standard podstawowy
- Izolacja ścian oraz dachu Pianą PUR
- Wylanie posadzki
- Instalacja wodno-kanalizacyjna + C.O
- Instalacja elektryczna
- Zabudowa ścian wewnętrznych oraz działowych z ogniochronnych płyt GK
- Ogniochronne płyty Siniat
STALOVERS L3
L3 to nowoczesny i funkcjonalny dom parterowy z dachem dwuspadowym, zaprojektowany z myślą o wygodnym życiu dla pary lub rodziny 2+1. Prosta bryła budynku w połączeniu z przemyślanym układem pomieszczeń sprawia, że dom jest zarówno ekonomiczny w budowie, jak i komfortowy w codziennym użytkowaniu.
Sercem domu jest przestronny salon z aneksem kuchennym, który tworzy jasną, otwartą strefę dzienną sprzyjającą wspólnemu spędzaniu czasu. Duże przeszklenia zapewniają doskonałe doświetlenie wnętrza oraz bezpośrednie wyjście do ogrodu lub na taras.
W części prywatnej zaprojektowano dwie wygodne sypialnie, gwarantujące ciszę i komfort wypoczynku. Uzupełnieniem programu funkcjonalnego jest łazienka oraz praktyczne pomieszczenie gospodarcze, które doskonale sprawdzi się jako kotłownia, pralnia lub schowek.


