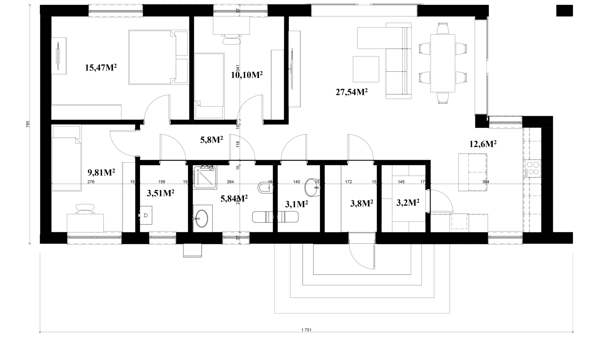
| Bereich “nach dem Boden”: | 105 m2 |
| Bodenfläche | 100,77 m2 |
| Anzahl der Zimmer einschließlich des Wohnzimmers: | 4 |
| Raumhöhe: | 2,79 m |
| Höhe des Gebäudes: | 6,15 m |
| Mindestabmessungen des Grundstücks: | 13,1 m x 21,5 m |
- Hausentwurf
- Stahlkonstruktion IPE 160
- OSB-Decke
- Konstruktion von Dach und Außenwänden mit Hausfassade
- Außentischlerei - 3-Scheiben-Fenster (einseitig), und Außentüren
- Grundlegende Norm
- Wand- und Dachdämmung mit PUR-Schaum
- Gießen des Bodens
- Sanitäranlagen + Zentralheizung
- Elektrische Installation
- Innen- und Trennwandverkleidungen aus feuerfesten Gipsplatten
- Siniat-Brandschutzplatten
Berlin Erdgeschoss
Energieeffizientes Haus „Berlin” ist ein einstöckiges Wohnhaus im Stil einer modernen Scheune, die Funktionalität und Ästhetik verbindet. Es zeichnet sich durch große Verglasungen aus, die für viel Licht im Inneren sorgen und das Haus zur Umgebung hin öffnen. Der Brennpunkt ist geräumiges, offenes Wohnzimmer, was das Gefühl von Raum und Komfort noch verstärkt.
Die Fassade ist eine harmonische Kombination aus Holzeinlagen und eleganten Falzblechen, die dem Gebäude einen modernen und doch gemütlichen Charakter verleihen. Das ebenfalls mit Falzblech verkleidete Dach unterstreicht die schlichte, aber markante Form des Hauses, die dem Gedanken der Energieeffizienz und des zeitgenössischen Designs entspricht.








